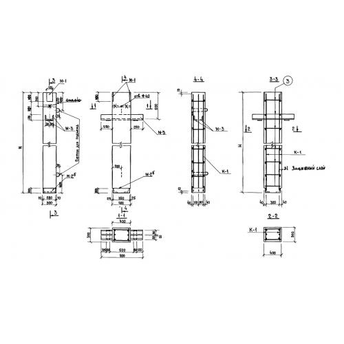
Колонна железобетонная КЛв 235 из серии 1.123 КР-1 предназначена для использования в строительстве как несущий элемент. Изготовлена из высококачественного железобетона, обладает высокой прочностью и устойчивостью к внешним воздействиям. Применяется для возведения зданий, сооружений, мостов, а также для укрепления и усиления конструкций. Колонна обладает долгим сроком службы и не требует особого ухода.









