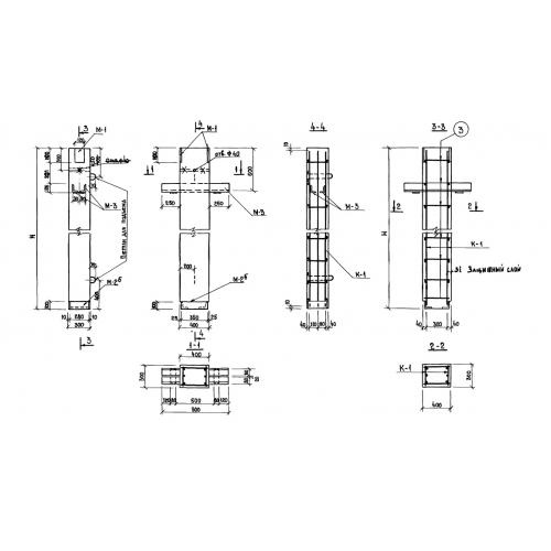
Колонна железобетонная КЛв 295 из серии 1.123 КР-1 предназначена для использования в строительстве как несущий элемент. Изготовлена из высококачественного железобетона, обладает высокой прочностью и устойчивостью к внешним воздействиям. Применяется для возведения зданий и сооружений различного назначения, обеспечивая надежную опору и поддержку конструкций. Колонна обладает стандартными размерами и габаритами, что упрощает ее монтаж и интеграцию в проекты строительства.









